Start
Profil
Leistungen
Referenzen
Stellenangebote
Kontakt
Datenschutzerklaerung
Impressum
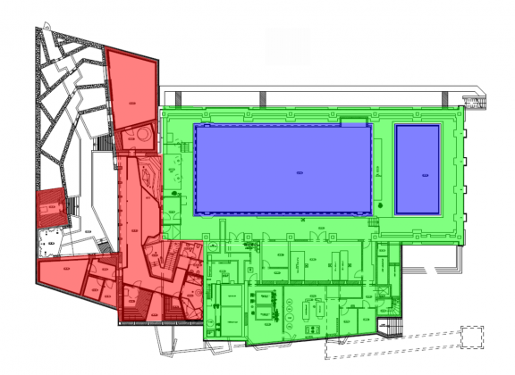
Projektdaten
Projektname:
Schwimmhalle Borna
Leistung(en):
Leistungen für Thermische Bauphysik gemäß HOAI Anlage 1 EnEV / DIN V 18599
Bauherr/Auftraggeber:
Stadt Borna
Projektzeitraum:
2010